❤パールハウスお預かり物件
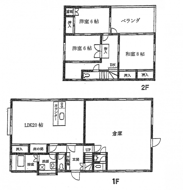
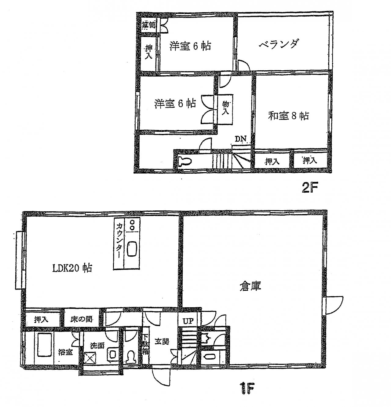
倉庫付中古戸建住宅
| 間取り(面積) | 価格(賃料) | 所在地 |
|---|---|---|
| 土地面積:429.55㎡(129.93坪) 建物面積:A147.38㎡(44.58坪)B67.48㎡(20.41坪) |
1,880万円 | 狭山市堀兼1909-7・1909-8・1909-2 |
西武新宿線「入曽」駅徒歩25分♪
広~い敷地・駐車場、庭!!そして倉庫も広々!!前面道路も!!
オーナーチェンジ物件!!是非一度現地をご覧下さいませ(^^♪
その他お気軽にお問い合わせください。




